- Фундамент: глубина 1,5 м, ленточный или блоки ФБС
- Цоколь: высота 0,45 м, фундаментный кирпич, блоки, монолит
- Наружные стены: толщина 450 мм, пенобетон/газобетон+лицевой кирпич
- Внутренние стены: пенобетон/газобетон, кирпич
- Высота 1-го этажа: 2,7 м
- Высота 2-го этажа: 2,7 м
- Высота мансардного скоса: 1,9 м
- Перекрытия 1-го этажа: по деревянным балкам
- Перекрытия 2-го этажа: по деревянным балкам
- Кровля: битумная черепица, металлочерепица
- Наружная отделка стен: лицевой кирпич
- Наружная отделка цоколя: природный камень
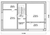
- Ширина дома: 12,0 м
- Длина дома: 8,0 м
- Высота дома от уровня пола 1-го этажа: 7,8 м
Проект дома с сауной B-313
Стоимость строительства указана из расчета 50 тыс. руб/м2 (газосиликатные блоки+лицевой кирпич). Узнать все цены по ссылке.
-
Площадь, м2141,21
-
Этажностьс мансардой
-
Количество спаленс двумя спальнями
-
Материалыиз кирпича
Проект дома - это детальный план, который включает в себя все аспекты и характеристики будущего строения. Он содержит информацию о размерах, планах, фасадах, разрезах и внешнем виде здания. Проект дома является основой для строительства, позволяя контролировать процесс и гарантировать качество исполнения.
- Получение разрешений на строительство дома и подключения к нему всех инженерных коммуникаций.
- Предоставление документов в банк на получения кредита, ипотеки, субсидий на строительство.
- Планирование и организация строительства: проект помогает определить последовательность работ, количество и тип необходимых материалов, а также сроки выполнения каждого этапа.
- Контроль качества: проект дома служит эталоном, по которому оценивается правильность выполнения строительных работ и соответствие стандартам.
- Экономия средств: правильно составленный проект позволяет избежать лишних затрат на материалы, оборудование и рабочую силу, а также минимизировать риски ошибок и переделок.
- Безопасность: проект дома учитывает строительные нормы и правила, обеспечивая безопасность проживания и эксплуатации здания.
- Комфортное проживание: грамотно составленный проект обеспечивает комфортное проживание в доме, учитывая потребности и предпочтения будущих жильцов.
- Экологичность: проект может предусматривать использование экологически чистых материалов и технологий, что благоприятно влияет на окружающую среду.
Пример эскизного проекта















Проект дома не содержит привязки к строительным материалам и технологиям, не содержит инженерных и конструктивных разделов, но содержит тот необходимый минимум информации, при котором его достаточно для получения всех необходимых разрешений на строительство, а также для последующего возведения дома на земельном участке. В зависимости от сложности проекта, его этажности, размера, набора помещений и т.д. состав проекта может несколько отличаться.
В данном расчете мы указываем объем фундамента, цоколя, стен, перегородок, площадь кровли, т.е. предоставим данные по самым основным и затратным материалам. Это не будет полноценной сметой, т.к. стоимость материалов и работ по возведению может отличаться в разных регионах, но этих данных будет достаточно для того, чтобы строители смогли просчитать стоимость возведения постройки и смогли указать сроки реализации проекта.
Данный расчет Вы можете заказать, как дополнение к уже выбранному проекту, так и в качестве информации для принятия решения перед покупкой понравившегося проекта.
Выберите понравившийся проект или другой товар и добавьте его в корзину (кнопка "Скачать"). В корзине можно применить купон со скидкой или указать номер подарочного сертификата (при наличии). Далее необходимо перейти к оформлению заказа (кнопка "Оформить").
На странице оформления заказа вы можете выбрать вариант отплаты (для физлиц или организаций), доставка товара в электронном виде выбрана по умолчанию. После необходимо подтвердить заказ и перейти на страницу оплаты. После проведения оплаты все выбранные позиции станут доступны к скачиванию на странице товара, также на Вашу электронную почту поступит письмо, в нем будут ссылки на скачивание. Скачать купленный товар можно в течение 24-х часов после оплаты, после этого ссылки будут не действительны.
Оплата возможна банковским переводом (для ИП и организаций), а также при помощи банковских карт, карт рассрочки и т.д. (обычный покупатель).
Доставка проектов возможна только в электронном виде. Готовые проекты отправляем в PDF-альбомах, чертежи оформлены на формате А3. Файл выгрузки каталога проектов для партнеров предоставляется в формате CSV.
Внимательно ознакомьтесь с составом проекта перед покупкой, с примером выгрузки каталога проектов, задавайте все необходимые вопросы специалистам, т.к вернуть или обменять цифровой товар, купленный в нашем интернет-магазине, нельзя.
Дом из газосиликатных блоков с отделкой облицовочным кирпичом
Тёплый контур - 50 тыс. руб/м2:
- Фундамент: ленточный, глубина - 1200 мм
- Цоколь: блоки СКЦ, марка 75, высота - 600 мм
- Наружные стены: газосиликатный блок, ширина - 300 мм (Старый Оскол), вентзазор - 50 мм, облицовочный кирпич (Старый Оскол)
- Высота потолков: 3000 мм до перекрытий
- Перекрытия: брус - 200х50 мм, утепление - 200 мм минераловатным утеплителем
- Кровля: металлочерепица Victory, толщина - 0,45 мм (Гранд Профиль), подшива и водосточная система - белые
- Окна: ПВХ, 2-х камерный стеклопакет, цвет - белый (KBE), металлические отливы
- Входная дверь: металлическая, утепленная
- Черновая стяжка пола: толщина - 100 мм, армированная сеткой
- Инженерия: закладные под канализацию и воду, разводка труб канализации под черновой стяжкой пола
- Отмостка: ширина - 800 мм, толщина - 100 мм
Тёплый контур с отделкой "WhiteBox" - 55 тыс. руб/м2:
- Штукатурка и шпатлёвка стен
- Чистовая стяжка пола
- Разводка водопровода, электрики, отопления по дому
Тёплый контур с отделкой "Под ключ" - 65-70 тыс. руб/м2:
- Оклейка стен обоями
- Укладка ламината и плинтуса
- Устройство натяжных потолков
- Установка розеток, выключателей, светильников
- Укладка плитки в мокрых зонах (кухня, ванная, санузел)
- Установка межкомнатных дверей оценивается отдельно
Дом из газосиликатных блоков с утеплением и отделкой декоративной штукатуркой
Тёплый контур - 47 тыс. руб/м2:
- Фундамент: ленточный, глубина - 1200 мм
- Цоколь: блоки СКЦ, марка 75, высота - 600 мм
- Наружные стены: газосиликатный блок, ширина - 300 мм (Старый Оскол), фасадный пенопласт - 50 мм, декоративная штукатурка AcrilS.Therm (Белгород)
- Высота потолков: 3000 мм до перекрытий
- Перекрытия: брус - 200х50 мм, утепление - 200 мм минераловатным утеплителем
- Кровля: металлочерепица Victory, толщина - 0,45 мм (Гранд Профиль), подшива и водосточная система - белые
- Окна: ПВХ, 2-х камерный стеклопакет, цвет - белый (KBE), металлические отливы
- Входная дверь: металлическая, утепленная
- Черновая стяжка пола: толщина - 100 мм, армированная сеткой
- Инженерия: закладные под канализацию и воду, разводка труб канализации под черновой стяжкой пола
- Отмостка: ширина - 800 мм, толщина - 100 мм
Тёплый контур с отделкой "WhiteBox" - 52 тыс. руб/м2:
- Штукатурка и шпатлёвка стен
- Чистовая стяжка пола
- Разводка водопровода, электрики, отопления по дому
Тёплый контур с отделкой "Под ключ" - 65 тыс. руб/м2:
- Оклейка стен обоями
- Укладка ламината и плинтуса
- Устройство натяжных потолков
- Установка розеток, выключателей, светильников
- Укладка плитки в мокрых зонах (кухня, ванная, санузел)
- Установка межкомнатных дверей оценивается отдельно
Данные цены максимально приближены к реальным, но могут меняться в зависимости от сложности проекта, особенностей земельного участка, его удаленности от населенного пункта и состава почвы. Точную стоимость строительства можно озвучить после уточнения всех данных по проекту дома, строительным материалам, земельному участку и составив на основании всего вышеперечисленного смету.